弊社がお客様へご提案させていただきました防犯システムの導入事例を紹介いたします。様々な設置環境での導入例を掲載しておりますので、お客様の防犯システム導入時のご参考になれば幸いです。
○不審者の侵入を抑止したい。

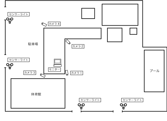
1.登下校時に使われる正門Aを防犯カメラで監視。
登下校時の児童が多く行き来するポイントな為、望遠カメラによりハッキリと撮影。しっかりとした安全性の確保を図る。
商品:屋内用カラーカメラ(屋外設置用ハウジング収納)×1台
2.校庭と行事の際、主に車両用として開放される正門Bを防犯カメラで監視。
正門Bを中心に、校庭を広く撮影。監視だけでなく、威嚇効果も発揮。
商品:屋内用カラーカメラ(屋外設置用ハウジング収納)×1台、 ワンケーブルシステム×1台
3.職員、関係業者が主に利用する裏門Aを防犯カメラで監視。
出入りの業者に紛れ、不審者の侵入も予想される箇所である為、高画質カメラを設置し、裏門から事務室へ通じる裏口までの範囲を監視。
商品:屋内用カラーカメラ(屋外設置用ハウジング収納)×1台
4.給食用の食材搬入に使用される裏門Bを防犯カメラで監視。
出入りの業者に紛れ、不審者の侵入も予想される箇所である為、高画質カメラを設置して監視。
商品:屋内用カラーカメラ(屋外設置用ハウジング収納)×1台、 ワンケーブルシステム×1台
5.侵入の際に使われやすい各門を防犯カメラで監視。
正門、裏門4箇所にセンサーライトを設置。夜間の威嚇、撮影用の補助照明として活用。教育の現場を守る為に求められる安全な環境を作る。
商品:センサーライト×4台